您好!欢迎进入成都市怡藤科技有限公司官方网站!

机电抗震专家

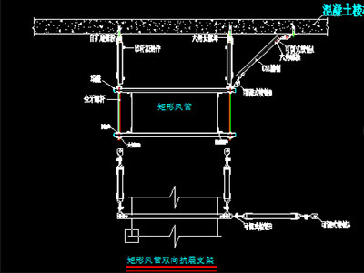
抗震支架

当前所在位置:主页 > 产品中心 > 抗震支架 >

抗震支架

4.jpg